
1 minuto de lectura'

¡Hola! Esta semana nos escribió Gabriela para que la ayudemos con la distribución y deco del dormitorio de sus hijos. Un caso que a simple vista parecía sencillo de resolver pero no lo es tanto, ya que la idea de nuestra anfitriona es conservar las dos camas con las que cuenta y sumar nuevas funciones.
Para la solución les presento tres esquemas para la distribución de este cuarto. Veamos la primera:

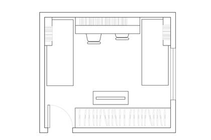
Si las medidas de las camas verifican, podemos apelar a la idea que nos dejaba Ayeung, quien nos presento este referente. Poner las camas en paralelo es una buena opción porque optimiza el largo de la pared.
Sobre la ventana se podría ubicar un escritorio doble, aprovechando la entrada de luz natural, y sobre la pared que está enfrentada a ésta, podría ir ubicada la TV provista de un brazo móvil.
De esta forma se definen muy bien tres espacios: el de trabajo, el de descanso y otro para el relax. Sobre ambas camas se podría incluir un par de estantes para tener a mano las cosas que sean de uso frecuente.
En cuanto a la iluminación, se resolvería con un par de apliques de pared.

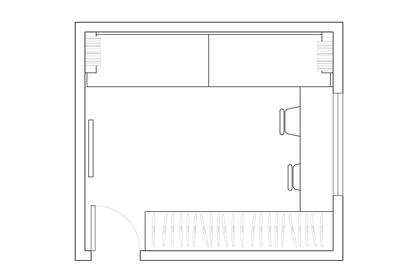
Para esta opción, las camas podrían ir en paralelo, reservando el espacio que quede entre ambas para ubicar el escritorio. Si bien este último es compartido, a diferencia de la propuesta anterior esta distribución ayudaría a dividir/definir mucho más el espacio para cada ocupante. Como extra se podrían ubicar estantes, por un lado sobre el espacio de trabajo, por otro, sobre los laterales arriba de ambas camas.
Un empapelado de color diferente para cada rincón, pintura o vinilos con motivos que ellos elijan o poster de sus equipos favoritos definirá de una manera personalizada los espacios. Otro punto a favor en este caso es que se siguen manteniendo las tres zonas: de trabajo, descanso y relax. La contra es que la TV debería estar ubicada sobre una mesa con ruedas de tamaño menor al de la actual, para que no entorpezca el acceso al placard.

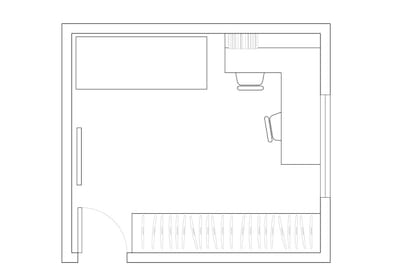
Para esta última alternativa de distribución habría que incorporar camas superpuestas. El escritorio en "L" diferenciaría mucho más el espacio de cada uno y estaría suplementado con unos estantes sobre la pared, aprovechando la altura del techo que ofrece una interesante superficie de guardado.
La TV, al igual que en la primera alternativa, iría colgada del muro con un brazo móvil.
Para que cada rincón tenga el sello propio de su ocupante, aparecieron muchas ideas que vale la pena rescatar:
Yo_platense decía: "Se pueden armar dos sectores temáticos, con los objetos e imágenes que le interesan a cada uno sobre la pared correspondiente. Incluso cada cama debería tener con acolchados distintos pero que armonicen en algún tono o diseño".
Por su parte, Luci_lu comentaba: "Para mis chicos implementé el verde pistacho combinado con azul. Creo que es una buena alternativa para el cuarto de los varones".
En cuanto a la iluminación, Lislag sugería: "Los apliques sería ideal que fueran direccionales. Podés sumar, si el espacio te lo permite, un baúl para guardar los juguetes. Como iluminación central que podrá tener desde motivos de futbol e incluso simulando una pelota".
Inesjhome nos recordaba: "Para los estantes manejate con una profundidad de unos 25cm de porfundidad". Sobre este mismo punto, Marialdsm decía:"Si usas estantes sobre el escritorio, colocaría dos guías que sean con ménsulas y a medida que vayan creciendo los estantes se van acomodando y moviendo de lugar según las necesidades y tamaño de los chicos. También se pueden pintar e ir renovando".
Hellonaty comentaba: "Si los chicos son fanáticos del fútbol, una forma fácil de incorporar el tema es comprar los cubrecamas y las sábanas del equipo que quieran, o de la selección y hasta un puf con forma de pelota o algún vinilo".
Pienso que hasta se podría calcar algunas siluetas sobre la pared y pintarlas como en esta imagen que nos dejó Inesjhome.
Por último, Juanabanana sugería esta paleta y nos decía: "Es masculina y neutra, así que podés jugar con los acolchados más juveniles ahora, y después cambiarlos por algo más de adolescente/adulto".
Bueno, con esto cerramos la solución de esta semana. Gracias a todos por sus aportes y nos vemos nuevamente el lunes!!
1
2Se conocieron cuando ella tenía 12 y él 17 y llevan juntos ocho décadas: “Solo puedo hablar de ella con letras mayúsculas”
3Llamó a su esposa y le propuso hacer un viaje que cambió sus vidas para siempre: “Nos vamos a Alaska tres o cuatro meses”
4Efemérides del 20 de febrero: ¿qué pasó un día como hoy?



