De cárcel a espacio histórico: así se transforma el expenal de Caseros en el nuevo Archivo General de la Nación
El cambio es cada vez más notorio. Ya son cinco pisos los que se levantaron. Eso es apenas una parte de uno de los dos edificios que formarán parte del moderno complejo del Archivo General de la Nación.(AGN). Allí estaban, hasta hace una década, las imponentes moles de 25 plantas que albergaban la cárcel de Caseros, en el barrio porteño de Parque Patricios .

LA NACION recorrió la obra , que estaría finalizada para fin de año. Más de 100 operarios preparaban los encofrados para las losas y levantaban las paredes con ladrillos ignífugos que pueden soportar hasta 120 minutos de fuego antes de colapsar. Esta y otra tecnología de última generación se aplicarán en el complejo que preserva documentos históricos del AGN, organismo que fue inaugurado en 1821.

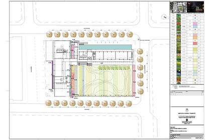
La construcción tendrá 10.000 m2 en esta primera etapa del complejo diseñado por los arquitectos platenses Juliana Deschamps, Javiera Gavernet y Fabio Estremera. Más adelante contará con dos torres más y llegará a 35.000 m2 aproximadamente. De esta forma, se resolverán los problemas edilicios del actual edificio del AGN, que se encuentra ubicado en la Avenida Leandro Alem 246.

El edificio que se está construyendo se organiza en dos cuerpos diferenciados. El primero, de dos niveles, es longitudinal con respecto a la calle Rondeau. Allí funcionarán los programas de acceso público, como las áreas de exposición, auditorio, aulas de extensión, sala de referencia y sala de consulta, así como las áreas de dirección de la institución.

El cuerpo de mayor altura, ubicado longitudinalmente a la calle Pichincha, consta de siete plantas destinadas en su mayoría a las áreas de depósito de documentos y de talleres de limpieza, restauración, digitalización de documentos, y catalogación. En esta área estará vedado el acceso al público.

En total serán 36 espacios de almacenaje que estarán repartidos entre el primer y el sexto piso. La construcción de estos locales destinados a depósitos se hace de acuerdo a parámetros de diseño que responden a la necesidad de preservar los documentos históricos que van a alojar. Por ejemplo, tienen puertas de hierro cortafuego, paredes dobles con ladrillos ignífugos y sistema seco de alarma de incendios.

Ambos edificios se conectan a través de pasarelas en la planta baja y en el primer piso. El predio está pensado para levantar dos edificios de 7 pisos de iguales características al depósito actual. De esta manera, se triplicará el espacio para archivo, aunque esa parte de la obra no se hará ahora.

En esta primera etapa del proyecto se trasladará la documentación que está en los depósitos de los departamentos de cine, audio y video, de fotografía y el área que denominan archivo intermedio:
- Departamento de cine, audio y video: 776 ml (metros lineales)
- Fotografía: 2836 ml
- Archivo Intermedio: 16.000 ml
De esta manera, se logrará la unificación de todo el archivo siglo XX que actualmente está distribuido en las sedes de Paseo Colon y Benedetti. Además, el archivo intermedio tendrá condiciones adecuadas de almacenamiento, al igual que los archivos de fílmico, audio y video y de fotografía, actualmente en considerable riesgo.

Una cárcel que se demolió hace una década
El penal de Caseros ocupó dos manzanas en Parque Patricios. La parte nueva y donde se levanta el edificio del AGN se comenzó a construir durante el Gobierno de Frondizi y fue inaugurada en el año 1978. Ese módulo de 25 plantas y en forma de "H" fue diseñado para recibir a encausados, es decir, para períodos de reclusión cortos en correspondencia con la tramitación de la causa. Carecía de patios abiertos y así, sin ver el sol, convivieron en ella, en contra del propósito original, presos comunes y políticos que permanecieron años.

En 1984, tras un violento motín, la mayor parte de las instalaciones de este edificio de 85.000 m2 (distribuidos en un basamento y dos torres de veintidós pisos) dejaron de funcionar. Finalmente, en el año 2000, Patricia Bullrich , que era la secretaria de Asuntos Penitenciarios, anunció que se había tomado contacto con el Comando de Ingenieros del Ejército para que realizaran los estudios necesarios para ejecutar la demolición del edificio por voladura controlada.
La demolición finalizó, por medios manuales, en el año 2008. Solo quedó la pared perimetral. La nueva construcción revitalizará esta manzana de Parque Patricios.


- 1
Subasta sin compradores: el Gobierno no logró vender el terreno de la polémica en Almagro
2Comenzaron las obras: así será el nuevo espacio verde que beneficiará a 70.000 vecinos y promete transformar la zona norte de la Ciudad
3Hay alerta amarilla por tormentas para este viernes 27 de febrero: las provincias afectadas
4Paro de controladores aéreos: se levantó la medida de fuerza de hoy, pero sigue activo el cese de actividades a partir del sábado







