Tragedia en el Faena Art Center de Puerto Madero: cómo es el lugar donde se accidentó María Kouznetsova
La entrada principal al edificio tiene una imponente y empinada escalera
1 minuto de lectura'
Las escaleras por las que cayó María Kouznetsova, la joven de 27 años que murió luego de asistir a la fiesta de fin de año de la empresa en la que trabajaba, llaman la atención en el centro de convenciones ubicado en el corazón de Puerto Madero.
La entrada principal al edificio del Faena Arts Center impacta no solo por sus dimensiones, que ocupan el ingreso de punta a punta sino por la altura en la que se encuentra. Para poder entrar o salir del espacio principal del Faena Arts Center, es necesario ingresar por una gran escalera que se divide en dos bloques de escalones, separados por un descanso. Una vez cruzadas las puertas hay otro tramo de escaleras.
Si bien hay otras formas de ingresar al predio -en la parte inferior del edificio hay ascensores- el ingreso y egreso del salón principal, donde se han realizado muestras de arte, se realiza en la mayoría de los casos por las escaleras mencionadas.
Impactante por sus dimensiones, descender por esas escaleras puede ser complicado, razón por la cual tienen cuatro barandas dividiendo el espacio que ocupan los escalones antes del ingreso y una vez cruzadas las puertas. El primer segmento de escalones, el que se usa para el ingreso, solo cuenta con dos barandas laterales del lado izquierdo.
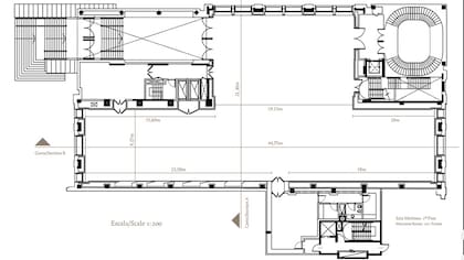
El plano del lugar







