Bodega Navarro Correas: de acero, hormigón y naturaleza
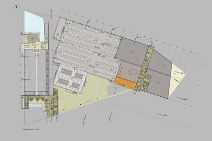
El estudio AFT proyectó la segunda bodega de Navarro Correas en Mendoza, que marca un hito en la región por su carácter vanguardista y materiales atípicos como acero Corten y hormigón premoldeado. El edificio, de 11.000 m2, organiza sus espacios en torno de una plaza triangular y tiene una capacidad productiva de 1.500.000 litros de vino de exportación
1 minuto de lectura'
LUJAN DE CUYO. -A casi 1000 m sobre el nivel del mar y a 10 km de la capital mendocina se inauguró en Agrelo, Luján de Cuyo, la segunda bodega de Navarro Correas, proyectada por el estudio cordobés AFT, autor del Museo de Arte Latinoamericano de Buenos Aires (Malba) por ejemplo. Este nuevo edificio marca un hito en la zona vitivinícola con una arquitectura vanguardista más alineada con las tendencias europeas y del norte de América que con los últimos emprendimientos locales, que aunque son contemporáneos rescatan la tradición cultural de la región.

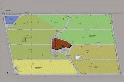
Pero no se trata de una construcción alocada, todo lo contrario, se presenta un espacio organizado claramente en función de los condicionantes climáticos y de "una actividad que entremezcla la pasión que requieren las tareas artesanales de autoría personal con la excelencia y el profesionalismo que demandan las actividades industriales de escala internacional", explican los autores.En un viñedo de 50 hectáreas, organizados en torno de una plaza de acceso triangular, se disponen dos volúmenes con las funciones de vendimia y fermentación, el sector de guarda en barricas y el área de crianza en botellas, de 11.000 m2. La firma Diageo, propietaria la marca, informó que la inversión prevista es de 14 millones de dólares, correspondiendo el 70 porciento a la adquisición de tierras, viñedos e infraestructura edilicia, mientras que el resto se destinará a adquirir tecnología de punta. La capacidad productiva actual es de 1.500.000 litros en tanques de acero inoxidable, con posibilidad de alcanzar los cuatro millones de litros.

"La nave de 2000 barricas, caracterizada por una gran masa térmica, se localiza en el costado oeste del edificio para funcionar como una barrera de protección contra el tórrido sol de la tarde y el indeseable zonda (viento cálido y seco característico de la región que proviene del océano Pacífico). El área de vendimia necesita mantenerse fresca en verano, que es el tiempo de cosecha, y se ubica en dirección sudeste para minimizar el asoleamiento y su consiguiente ganancia térmica. El área de visitantes, aún no construida, estará en el sector noroeste para evitar las interferencias con las actividades industriales (concentradas en el área sur) y aprovechar las magníficas vistas sobre la cordillera mendocina", explican los arquitectos. Una vez construido este último sector, la obra ocupará un total de 12.400 metros cuadrados. En esta nueva bodega se produce el vino premium de exportación bautizado Structura, que según Robert Parker, uno de los críticos más influyentes del momento, tiene una puntuación de 95/100 (equivalente a "extraordinario").

Es una casualidad entonces que el vino pueda relacionarse con la edificación donde se produce, cuya estructura es muy particular: "el nombre surgió posteriormente al proyecto de arquitectura", aclara Alfredo Tapia, socio del estudio AFT.
El amplio espacio interior se logra mediante columnas con forma de Y que sostienen un entramado de vigas revestido por fuera con acero oxidado, que por forma y color remiten a los viñedos. El acero Corten empleado es una aleación de cobre, cromo y níquel especial, caracterizado por corroerse y formar una película autorregenerante cuando se expone a los agentes atmosféricos; como el color varía permanentemente, lo convierte en un material vivo, "algo que se relaciona directamente con las propiedades del vino, que también es un producto en constante evolución", explican los autores.

Las vigas reticuladas regulares de la cubierta presentan alteraciones en algunos puntos para formar lucernarios que abren la cubierta "estratégicamente en dirección sur, permitiendo el ingreso de luz natural y de la ventilación requerida para eliminar el potencialmente mortal dióxido de carbono que se genera durante el proceso de fermentación", agrega Tapia. "Tal vez la decisión más estratégica fue la elección de una paleta de materiales reducida, pero con una alta carga simbólica, con el uso del acero en la cubierta, emparentado asombrosamente con el contexto natural mendocino y el hormigón visto de las placas premoldeadas del basamento, que se adapta perfectamente al carácter industrial del proyecto", concluye el arquitecto.



