La construyó el inmigrante francosuizo Luis De Lemoine, un ingeniero experto en marcas y patentes industriales que se estableció con su familia en Mar del Sud hasta el día de su muerte, a los 103 años
8 minutos de lectura'


De todas las casas misteriosas que existen en Mar del Sud, la que Louis De Lemoine construyó a principios de los años ‘40 a un costado del arroyo La Carolina quizá sea la más antigua, enigmática y desconocida de todo este pequeño pueblo de mar situado en el lejano sudeste bonaerense, 50 km al sur de Mar del Plata.
Oculta entre un pequeño bosquecillo centenario, la “casa del puentecito” es una cabaña prefabricada en Suiza que fue importada en partes por el ingeniero e inventor De Lemoine, autor de manuales de ciencia y técnica y de numerosos ensayos sobre marcas y patentes al que todos en el pueblo conocían como “Don Luis”.
Trilingüe —hablaba francés, alemán y castellano―, de contextura pequeña y salud de hierro, De Lemoine fue el primero en construir una casa en el margen norte del arroyo La Carolina, el curso de agua que divide las localidades de Mar del Sud y Boulevard Atlántico, en el partido de General Alvarado, provincia de Buenos Aires.

Para hacerlo, además de ir armando la pequeña cabaña de 45 m² por piezas como si fuera “un mecano”, encajando cada parte en el lugar que indicaba el plano escrito en alemán, el ingeniero debió construir un puente sobre el arroyo que le permitiera cruzar los materiales. Para ello empleó madera de quebracho y rieles de ferrocarril.
Ese puente, por donde De Lemoine iba y venía a bordo de su automóvil marca Simca modelo Gordini color negro, también fue utilizado por la mayoría de los vecinos, un puñado de personas en aquella época: por allí cruzaban hacia la zona del Remanso, el lugar en el que se ocultan las mejores playas de Mar del Sud, y donde se construyó también una segunda casa, tan pionera, contemporánea y enigmática como la del inventor franco-suizo: la “casita de los alemanes”, bajo cuyos cimientos apareció enterrada la lápida del tesorero del Partido Nazi Argentino.

El paso que construyó De Lemoine, a la altura de la calle 17 y 106, que le dio nombre a “la casa del puentecito”, se mantuvo en pie, con algunas modificaciones, durante casi 80 años, y fue desvencijándose de a poco hasta que la furiosa inundación del año 2014 se lo llevó puesto por completo.
Ahora solo queda un pequeño cruce peatonal armado por los vecinos con madera de palet que usan los más pequeños para pescar mojarras y cangrejos.
Como en un cuento de hadas
Cuando De Lemoine murió en esa misma casa a los 103 años, en 1988, su mujer, también mayor, y su hija, dejaron Mar del Sud, y la cabaña quedó abandonada.
Los más viejos cuentan que los niños de la época solían intrusarla, pero que nadie se animó nunca a robar nada de adentro, un poco por el miedo que les generaba el misterioso sitio y otro por el respeto que había dejado Don Luis en la memoria del pueblo.
El propietario actual de la vivienda es un documentalista y director de cine argentino que vive en España. Se llama Laureano Clavero y residió durante su niñez en Mar del Sud. Era tan fuerte el recuerdo que imprimió la leyenda de De Lemoine en su memoria adolescente que cuando tuvo la oportunidad compró la cabaña, hace poco más de una década, tras haber pertenecido a dos familias diferentes y sufrir una serie de modificaciones que no llegaron a transformar la cabaña original.

“Si bien la cabaña tiene un estilo suizo no es una casa alpina. De Lemoine la trae desde Europa en barco y tuvo que armarla como un Lego. Si subís al pequeño altillo se le ven los encastres del tipo ‘letra B con letra B’: la casa venía con la indicaciones de cómo ensamblarla”, cuenta Clavero a LA NACIÓN. “Toda la estructura principal es de una madera que no existe en la Argentina”, agrega.
Una eminencia ilustrada
Quedan en el pueblo muy pocas personas que conocieron al viejo inventor franco-suizo en vida. Una de ellas es Elsa Blanco, dueña de la legendaria inmobiliaria Blanco de Mar del Sud; vive allí hace exactos 70 años, cuando llegó en su adolescencia con su familia proveniente de Otamendi.
“Nosotras íbamos a tomar el té a la casita de Lemoine. Nuestra visita era todo un acontecimiento porque cuando nos acercábamos ya sentíamos el perfume de los scones horneándose en la cocina económica. Nosotras felices. Era un agasajo”, cuenta Elsa, que era amiga de la hija del ingeniero. “Era como estar viviendo dentro de un cuento de hadas”.

“Con su mujer, que era escultora, hacían una pareja muy distinguida: los recuerdo cuando iban a comprar lana a lo de Dalmacia, la tienda de Vesela, que era una inmigrante croata. Los dos eran unos divinos y unos adelantados a su tiempo”, recuerda Blanco.
Para mediados de los años ‘60, De Lemoine era considerado una eminencia, y no solo en Mar del Sud. Había escrito un libro de referencia, titulado Sus ideas, publicado en Buenos Aires en 1933, que versaba sobre las “Posibilidades que se ofrecen al inventor”; “Lo que debe saber todo inventor” y cómo “La patente de invención rinde utilidad al comerciante y al industrial”.
El ingeniero radicado en el sudeste atlántico también publicaba en la revista porteña Ímpetu, pionera en la incipiente industria de la publicidad y la propaganda, y en Radio Revista, una publicación de tutoriales sobre ciencia y técnica. Su último libro conocido, una edición de autor bajo el sello Estudios Lemoine, se llamó “Inventos y marcas”, tenía 261 páginas y se publicó en 1943.

Su obra podía consultarse en las bibliotecas de Buenos Aires y varios de sus escritos figuraban entre los más de 3115 títulos que reunía el archivo del presidente Juan Domingo Perón en 1955.
Sobre la historia del ingeniero franco-suizo previa a su llegada al país, casi nada se sabe, más que se trajo consigo la cabaña para armar. Su paso por Buenos Aires aún sigue en un manto de sombras. Su estadía en Mar del Sud es conocida por unos pocos.
“En el pueblo, De Lemoine daba clases particulares de francés a algunos vecinos, dicen que no las cobraba. Solía comprar querosene en el almacén de ramos generales La Luján, de la calle 21; y se daba baños de mar con frecuencia. También recolectaba algas que luego eran parte de la dieta familiar”, cuenta Clavero.
Un sótano misterioso
Los sucesivos propietarios de la casita de Lemoine, que la adquirieron a principios de los años ‘90, le fueron agregando ambientes de ladrillo y piedra, pero más allá de todas las modificaciones, el núcleo principal de la nueva casa no es más que la cabaña de madera suiza, que está casi tal cual como la dejó Lemoine el día que murió.

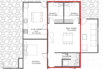
Originalmente la vivienda contaba con un living comedor, una cocina, un baño y dos habitaciones de 2 x 2.80 metros: son tan pequeñas que se parecen a los camarotes de un barco o de un tren. “La casa también tenía un sótano, lo cual es bastante raro en las construcciones de Mar del Sud”, cuenta Clavero.
“Dentro del sótano había unas recámaras de material super extrañas, eso me pareció rarísimo, pero finalmente fue tapado. También tenía dos altillos, uno de ellos ya estaba bloqueado cuando la compré; en el otro se puede ver cómo encastran las partes de la casa, ahí ves las entrañas de la cabaña”, agrega.

En la actualidad, Clavero se aloja en la casa cada vez que aterriza en Buenos Aires y suele alquilarla para el turismo mediante la inmobiliaria González Propiedades. Rodeada de una amplia forestación, está situada a 300 metros del mar y el sonido del arroyo La Carolina suele otorgarle una banda de sonido de película; resulta ideal para familias numerosas, ya que con las ampliaciones pueden alojarse hasta 15 personas por un valor diario de 100 dólares aproximadamente.
La casa principal, cuyo núcleo es la vivienda original de Lemoine, ahora tiene 4 dormitorios y dos baños; y hay además una segunda vivienda, situada a unos veinte metros, con dos dormitorios, cada una con su baño.
Ochenta años después le siguen diciendo “la casa del Puentecito” y todavía mantiene de adorno la cocina económica de fundición de hierro donde la familia De Lemoine horneaba aquellos scones que inundaban con su perfume los alrededores del arroyo La Carolina.
1La oferta y los precios de los departamentos y lotes que se venden en Pinamar, Cariló y en Costa Esmeralda
2Cómo es la isla de los millonarios a la que se muda Mark Zuckerberg
3Créditos hipotecarios: los 3 hechos concretos que muestran señales positivas para el futuro de los préstamos
- 4
Cuánto cuesta un departamento de lujo en Caballito hoy




