1 minuto de lectura'
Tras una reforma, un departamento oscuro y compartimentado se abrió con una increíble ganancia de espacio, luz y circulación. Y todos los deseos de cada miembro de la familia, por completo satisfechos.

Connie Alonso ya había vivido en esta propiedad de chica, con sus padres y su hermana; muchos años más tarde, se mudó aquí junto con su marido, Gustavo, y sus dos hijos. Pero el entorno había cambiado: el edificio, antes rodeado de casas bajas, recibía menos luz natural por las nuevas construcciones. A veces, la falta de sol es algo que empieza a pesar recién pasado un tiempo, sobre todo en este caso, en el que se volvía a un sitio conocido. En el momento crítico, le pidió ayuda a su amiga Gisela Literas, que terminó llevando adelante la reforma junto con su colega arquitecta Elizabeth Kuntz, su socia en el Estudio Literas.

"Hacía tiempo que no nos sentíamos a gusto; no daban ganas de estar en casa. Era tan oscura que teníamos las luces encendidas todo el día. Tanta era la incomodidad que hasta nos planteamos mudarnos: no le veíamos otra", recuerda Connie Alonso, dueña de este departamento en Caballito.

No veíamos solución, pero nos dimos la oportunidad de que nos abrieran los ojos. ¡Y las chicas nos presentaron cinco alternativas! Hoy tenemos espacios comunes y privados, lindos y muy práctos
En los interiores, eligieron mobiliario liviano de estilo industrial, combinado con madera, y una paleta de azules y grises. Al sumar algunos elementos que representan gustos personales y recuerdos de viaje, completaron un ambiente más personal. Con una nueva disposición y todos los espacios renovados, la familia se reencontró con su propio hogar.
Cocina integrada

Con la nueva claridad, los dueños de casa pudieron darse gustos cromáticos antes impensables: mobiliario negro y pintura azul para las paredes de la cocina y el living.
Sobre la mesada de Silestone ‘Blanco Norte’ (Imarmi Marmolería), cuenco (Sixta) con textiles (Qué Bonito, Cosas Lindas) y bandeja de Silestone con salero y pimentero (Cole & Mason para Park Design) y vasija para aceite (Oliva Ilustre). Grifería monocomando con pico móvil (Aqualia Gourmet para Familia Bercomat). Tostadora (Moulinex). Bajo alacenas, lámparas LED con encendido táctil y diferentes intensidades (Iluminando). El horno se empotró junto a las isla para manejar los fuegos sin perder el contacto con la reunión diaria. en la pared, mapamundi imantado comprado en un viaje.
Para la alzada querían algo distinto. Eligieron vidrio ‘Cover Glass Satin’ (Glassic) en sintonía con la paleta

La integración de la cocina y el living fue central en la reforma: demolimos la pared divisoria –con lo que ganamos luz natural y amplitud visual– y unificamos los pisos y tonos
Todo los muebles de la cocina tienen acabado de laca satinada (Estudio Literas). Como única separación transversal entre ambientes, la isla contiene el lavavajillas (Whirlpool) y anafe (Longvie). La mesada es de Silestone ‘Blanco Norte’ (Imarmi Marmolería). Sobre ella se apoyan huevera de madera de eucalipto (Facundo Monge Muebles), cuchara de madera tallada a mano (Estudio Mes) y jarra de cerámica artesanal (Candela González Arzac). En el piso, del lado del living, canasto de fibras naturales (Fraternidad) con manta tejida en hilo de algodón (Mapuche Hecho a Mano).
Nuevo escritorio

Los bancos, que también funcionan como mesas de apoyo, son de papel craft plisado y tapa de cuero ecológico (Sixta). En el nuevo escritorio de Connie, mesa a medida, sillón ‘Eames’ gris claro (Quamo) y un placard de melamina ‘Seda Notte’ (Faplac) que aprovecha toda la altura, diseñado por el Estudio Literas.

"Trabajo en casa, pero antes lo hacía en el cuarto de servicio, cerrado y aislado. Ahora tengo un escritorio junto a la ventana y estoy cerca de los demás".
Área privada

En el cuarto principal, piso original de madera –pulido y plastificado– y una paleta unificada: ropa de cama y almohadones con rayas ‘Theo Rustic’ y de tussor mostaza (Missha Deco), lámpara colgante fija ‘Infinit’ y apliques colgantes junto a la cama (ambos de Buena Luz). Mesa de noche de madera de castaño (Familia Echaide) con jarra nochera (Animarte Deco), alfombra de yute (Gion) y, sobre ella, huarachas realizadas en cuero en forma artesanal (Clara Freixas). En la cabecera, dos cuadros con lettering (Sur Arte Shop).

"Martina es adolescente y sus papás quisieron que tuviera su propio baño. Hicimos su nuevo cuarto en suite en el escritorio original, a modo de piezas encastrables, con medidas ajustadas y cada detalle muy pensado", cuenta Gisela Literas.
En el cuarto de Martina (16), mobiliario en melamina ‘Seda Giorno’ de Faplac (Estudio Literas), cubrecama y almohadones (Missha Deco), manta (Mapuche Hecho a Mano), tapiz colgante y almohadones ‘Niza’ (Gion). La tira de led decorativa cambia de color a control remoto. En el cuarto de Galo, mural de vinilo ‘Luna llena’ (Enamorada del Muro), alfombra (Missha Deco), almohadones con forma de estrellas, contenedor de juguetes (Algo Bonito Universo Artesanal) y muñecos de cemento (Cofradía Concreto).
Nuevos usos

"Le dimos nueva vida y utilidad real a un espacio que teníamos desechado. En un lateral está el lavadero y en el otro armamos un living que usamos mucho. Hasta de noche es lindo estar".
Sillón con almohadones, banquito y consola, todos de madera de castaño (Familia Echaide). Manta (Mapuche Hecho a Mano). Tetera, cafetera y regadera antiguas con suculentas (Jarclé Design). Mate artesanal de cerámica con base de lenga (Mestizo Colección). Cuando no se usa, el lavadero queda oculto tras una cortina roller. El sistema corredizo del techo fue puesto a punto: abre desde la parte más baja hacia el centro y favorece la ventilación de todo el departamento.
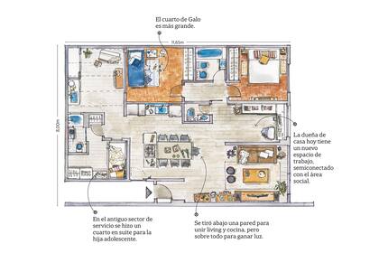
Qué se hizo: plano detallado

- 1
Diego Fernández, ingeniero químico: “Estos son los cuatro tips para eliminar malos olores de la casa”
2Luna de Sangre: desde qué lugares de Argentina se verá el eclipse este martes
3Cuáles son los mejores días para cortarse el pelo en marzo de 2026
4Solución natural: esta es la fruta que irrita a las cucarachas y las saca de la cocina






