Estancias del Pilar estrenó un nuevo concepto en urbanización
Estancias del Pilar apunta al diseño inteligente
1 minuto de lectura'
En sólo una semana se vendieron todas las viviendas de Estancias del Río Townhouses, el innovador proyecto que, apoyado en el diseño, naturaleza, sustentabilidad y servicios, refleja las nuevas tendencias en urbanización.
Hoy se lanza la segunda etapa de este proyecto que plantea un nuevo estilo de vida más parecido al de un pequeño pueblo, con la seguridad y todos los servicios del megaemprendimiento Estancias del Pilar. Las viviendas se desarrollan en el sector de Estancias del Río-El Pueblo que fue diseñado para acceder a pie o en bicicleta al Colegio Los Robles, comercios, oficinas, minimercado, restaurant, cafés, Club Estancias y parque-reserva de 7has sobre el Río Luján.

"En los últimos años, debido a los altos costos que supone construir y mantener una casa tradicional, se están buscando nuevos formatos de vivienda para disfrutar de la vida en el verde. Estancias del Río Townhouses es una propuesta que apunta al diseño inteligente para traer una solución a estas nuevas necesidades. Los Townhouses logran todas las prestaciones de una casa para familias de hasta 5 integrantes con jardín, pileta y vistas espectaculares en un formato más compacto. Esto reduce los costos de mantenimiento y permite vivir el estilo de vida de un pueblo", nos comenta el desarrollador, Esteban Zorraquín.
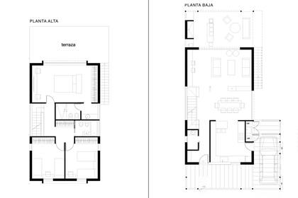
El diseño de las Townhouses se integra perfectamente al paisaje y logra conjugar las bondades de la construcción tradicional con las ventajas de una planta moderna y funcional con todos los ambientes necesarios para disfrutar de un confortable estilo de vida.

Estancias del Río Townhouses permite experimentar la sensación de vivir frente a un parque-reserva privado de 7has. único en Pilar. Desde las casas se puede disfrutar de las profundas vistas al bosque de acacias con sus suaves lomadas y la ribera del río Luján.


Las Townhouses se adaptan perfectamente a un uso permanente o de descanso. El diseño fue pensado para reducir el consumo de energía y los costos de mantenimiento, lo que las transforma en una más que atractiva propuesta.

Estancias del Río Townhouses forma parte de Estancias, el megaemprendimiento de Pilar con características únicas, no sólo por sus 450has de naturaleza sino también por su importante oferta de servicios (El Pueblo, Colegio Los Robles, Club Estancias, Club Champagnat, Estancias Golf Club). Estancias se encuentra en una de las zonas más exclusivas de Pilar y hoy cuenta con 6 barrios desarrollados y 700 familias residentes que disfrutan de una comunidad viva que no para de crecer.
"Luego del éxito de ventas de la primera etapa se hace realidad el muy esperado lanzamiento de la segunda, para la que ya contamos con pedidos concretos", nos comentan desde Pilar Norte Propiedades, encargados de la comercialización del proyecto.
Para mayor información Tel: 0230 4406508/0230 4404906 ó por mail: info@pilarnorte.com - www.pilarnorte.com
- 1
2Nublado, inestable y ventoso: así estará el clima este domingo, según el último informe del SMN
- 3
“Dos pesos, dos medidas”: tras la muerte de un joven de extrema derecha en Lyon, vuelve el debate por el crimen de un exPuma
4Murió un joven por una caída con su moto en los médanos de Villa Gesell y suma una nueva tragedia



