Una reforma integral que consiguió más lugar de guardado, cocina y baños irreconocibles y máxima espacialidad sin ampliar un centímetro.
2 minutos de lectura'
“Cuando hacés un cambio, algo tenés que resignar; por eso siempre nos aseguramos de que el cliente sepa qué va a ganar y qué va a perder en cada decisión”, describen las arquitectas Karina Pafundi y Marina Marin, de Estudio Primal, a cargo de la reforma de este departamento para una familia de cuatro donde el saldo parece ser todo a favor.

El pulido aclaró el piso, y la hidrolaca le bajó el brillo para darle un aspecto más natural versus el antiguo plastificado.

Los dueños conservaron su juego de comedor de madera lustrada, que hoy se luce de una manera totalmente distinta en este ambiente renovado.

El nuevo diseño del espejo recompone la línea entre la puerta y la mocheta, le da contención total al comedor y genera un entorno más armónico.

Ahora sí, el corazón de la casa
Con una zona de trabajo mínima e incómoda y un comedor sin uso, la cocina era el mayor desafío de la reforma. “Hoy, estos espacios son punto de reunión familiar, pero acá no ocurría porque todo era muy poco funcional”, explican las arquitectas.

La reforma extendió una mesada por todo el largo del ambiente e integró una mesa con un banco empotrado.

“Donde puedan, sumen guardado”, pidieron los dueños. De ahí, las alacenas hasta el techo y hasta un mini-mueble en la entrada para el portero eléctrico y las llaves.

A la premisa de líneas simples y mucho blanco, la acompañamos con textura y con materiales cálidos para crear un clima más hogareño.”
— Arqs. Karina Pafundi y Marina Marin, socias de Estudio Primal

Cocina y comedor para seis sin ampliar. ¿Cómo? Optimizando el espacio con el banco empotrado y una mesa de proporciones atípicas y patas a medida para arrimar las sillas.
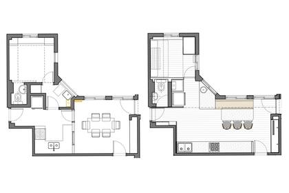
La cocina, planos del un antes y un después
Abajo, los planos de la cocina, para mirar y volver a admirar cómo, con una obra muy precisa, el aprovechamiento de los metros mejoró en un ciento por ciento.

El lavadero, que se apretaba en la esquina tras una puerta, se rediseñó como un núcleo con bacha auxiliar y lavavajillas. El lavarropas quedó enfrente, junto a la heladera en el volumen de madera.
Administrar centímetros es la cuestión
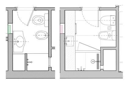
El baño de las hijas

“Un baño agradable empieza por entrar y ver la pileta”, dicen las arquitectas de Primal. Para conseguirlo, incrementaron apenas la profundidad (en rigor, 30 centímetros de un armario del otro lado) y así pudieron dar vuelta los artefactos y dejar la bacha frente al acceso.

El baño de la pareja


Puesta en valor

Redecorados, los dormitorios conservaron su distribución y elementos originales, un testimonio de la nobleza de la propiedad.




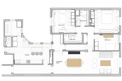
Plano general

Más notas de Antes y Después
Antes y después. De oscuro a luminoso y abierto: la reforma que transformó un dúplex en Cañitas
Antes y después, Cambiaron de vida transformando el patio de su planta baja de Recoleta en un jardín con pileta y quincho
Fondo y forma. Transformó el hogar de su infancia en una casa bajo el signo de la originalidad
1Así se diseñó el jardín de un arquitecto modernista en Guadalajara pensado para crecer con el tiempo
2Cómo crear espacios frescos y relajados en casa este verano
3Una mirada única: Homenaje a Daniel Karp, excepcional fotógrafo argentino que falleció tras cinco décadas de destacada labor
4De oscuro a luminoso y abierto: la reforma que transformó un dúplex en Cañitas









