Derrame cloacal en la ruta 11. Cómo será la planta que se construye en Pinamar y cuándo podrá estar en funcionamiento
La obra, diseñada para abastecer a más de 220.000 habitantes, se ejecuta por módulos; ya avanza sobre un predio municipal donde hasta hace poco había humedales y lagunas
7 minutos de lectura'

PINAMAR (Enviada especial).− El derrame cloacal que obligó a interrumpir la circulación en la ruta provincial 11, en el acceso a Pinamar, generó demoras y largas filas de vehículos durante la madrugada y la mañana del lunes. En el tramo de la ruta y en las zonas bajas linderas, frente al predio del Maxi Carrefour, se acumuló agua con sedimentos y residuos, lo que motivó la intervención de la Policía Ecológica y un operativo de limpieza con camiones, maquinaria pesada y personal de bomberos. Según pudo reconstruir LA NACION en el lugar, el episodio estuvo vinculado con una falla en una conexión del sistema cloacal operado por la Cooperativa de Agua y Luz de Pinamar (CALP), que derivó efluentes hacia esos sectores bajos próximos a la traza vial.

A pocos kilómetros de ese punto, detrás del bosque y cerca del polideportivo, el municipio decidió mostrar la obra que, según sus funcionarios, debería evitar que situaciones como esa vuelvan a repetirse: la futura Planta de Tratamiento de Efluentes Cloacales del Partido de Pinamar. LA NACION recorrió el predio junto con el intendente Juan Ibarguren y el director de Gestión Ambiental y Frente Marítimo, Carlos Enrique Dalto, ingeniero civil y coordinador técnico del proyecto.
El terreno donde ya trabajan las máquinas era, hasta hace poco, una zona baja que funcionaba como laguna y humedal. “Esto era prácticamente una laguna. Era todo suelo anegadizo. Se saneó y se fue trayendo suelo desde una cantera”, explicó Ibarguren, durante la recorrida. En algunos sectores, detalló, el relleno supera el metro y medio. Dalto completó: “Se va colocando en capas de 20 o 25 centímetros. Se controla la humedad, la densidad, el grado de compactación. Todo se mide. Es la base principal de cualquier obra”.

La etapa actual es de preparación del terreno. Sobre esa base se construirá la parte más pesada de la planta: pilotes, estructuras de hormigón y los grandes canales donde se realizará el tratamiento biológico. “Ahora viene la parte civil. Se están terminando los cálculos estructurales y ya se replanteó dónde va a ir la zanja de oxidación”, señaló Dalto. Esa zanja, según explicó, tendrá unos 130 metros de largo y será uno de los núcleos del sistema.
Según la memoria descriptiva del pProyecto elaborada por IASA en 2020, la planta fue diseñada para tratar hasta 48.000 metros cúbicos de efluentes por día, el equivalente a una población de 220.000 habitantes, con cobertura para Pinamar, Ostende, Mar de Ostende, Valeria del Mar y Cariló. El esquema prevé cuatro módulos operativos de 12.000 m³ diarios cada uno, que se incorporarán por etapas. En esta primera fase se construyen dos módulos, pero solo uno quedará equipado para operar.

El sistema de tratamiento es escalonado. En el tratamiento primario, el efluente pasa por rejas mecánicas, compactadores de residuos, desarenadores, tamices y bombas que separan sólidos y arenas. Luego, los líquidos ingresan a las zanjas de oxidación, grandes canales aireados donde bacterias eliminan la materia orgánica y el nitrógeno. A continuación, el agua fluye hacia los sedimentadores secundarios, tanques circulares de gran diámetro donde decantan los sólidos en suspensión. Después atraviesa filtros de discos que eliminan partículas finas, bacterias, virus y huevos de parásitos. La última etapa es la desinfección, una cámara de contacto donde se dosifica hipoclorito de sodio para que el efluente cumpla con los parámetros exigidos por la Autoridad del Agua antes de ser infiltrado en el suelo o reutilizado para riego forestal.
Infraestructura clave
Durante la recorrida, Ibarguren insistió en que, desde el punto de vista del municipio, esa infraestructura es clave para el futuro del partido. “Hoy Pinamar no cuenta con una planta de tratamiento de líquidos cloacales. Es fundamental para poder devolver el agua limpia al acuífero”, afirmó. El intendente explicó que el subsuelo funciona como una reserva limitada: “La cuenca de Pinamar es finita. Todo lo que pasa debajo del frente costero es agua dulce que filtra por la arena. Si no se trata, se contamina y se impermeabiliza el terreno”.

El vínculo entre la obra y el derrame de la ruta 11 apareció de manera explícita en su discurso. “Lo que pasó estos días era evitable. Una de las bombas del sistema que opera CALP no derivó al sector que correspondía y terminó desbordando”, dijo. Según explicó, en la actualidad los líquidos crudos se vuelcan en lagunas de descarga, lo que genera acumulación de sedimentos, impermeabilización del suelo y riesgo permanente de nuevos desbordes. “Esta obra es la que va a permitir que esos líquidos no se vuelquen ahí, sino que se traten”, agregó.

Dalto subrayó que el proyecto no es solo una obra de hormigón. “Tiene estudios de impacto ambiental, aprobaciones de la Autoridad del Agua y un sistema de monitoreo continuo. Hay sensores de pH, oxígeno, conductividad, caudalímetros y muestreadores automáticos que permiten saber en tiempo real la calidad del agua cruda y del efluente tratado”, explicó.
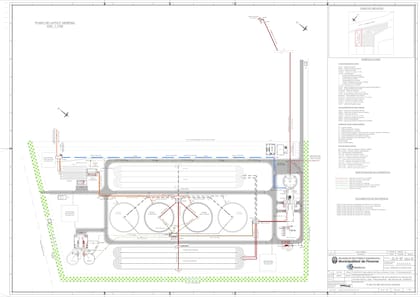
El plano general del proyecto, al que accedió LA NACION, muestra una planta organizada por bloques: el tren de entrada, las zanjas de oxidación, los sedimentadores, la sala de sopladores, los filtros, la cámara de desinfección y el sector de tratamiento de lodos. También incluye una estación elevadora principal, una estación de bombeo de lodos, laboratorio, sala de control con sistema Scada, subestación eléctrica, grupo electrógeno y un bypass para contingencias operativas.

De acuerdo con la memoria técnica, la potencia instalada prevista es de 250 kW en la primera etapa y de 800 kW cuando la planta funcione completa. El plazo de obra fijado es de 16 meses.
Terrerno municipal
La ubicación del predio también forma parte de la explicación oficial. “Es un terreno municipal, de los pocos libres que quedaban. Además, está en una zona que históricamente fue de humedales”, dijo Ibarguren. El intendente vinculó el derrame con la geografía del lugar: “La ruta está más baja que el nivel natural de Pinamar. Cuando algo falla, el agua corre hacia los bajos, que siempre fueron humedales”.
La historia del proyecto es extensa. Según explicó el intendente, la planta ya había sido diseñada y aprobada técnicamente en la gestión anterior, incluida la Autoridad del Agua, y había sido licitada. Sin embargo, la obra no se ejecutó. “En ese momento en el país había inflación y no se pudo financiar”, señaló Ibarguren.
Dalto agregó que “se presentaron empresas, pero nunca se terminó de adjudicar y quedó inconcluso”. De acuerdo con lo que indicaron ambos, en la gestión actual el municipio volvió a presentar el proyecto, renovó aprobaciones de la Autoridad del Agua y realizó un nuevo proceso de licitación, que permitió adjudicar la obra que está en ejecución.

Para el municipio, la planta también está ligada a un cambio en la planificación urbana. “Hoy tenemos zonas con pozos ciegos y otras, con cloacas. Con esto vamos a poder conectar más áreas. Y hacia adelante exigir que los nuevos desarrollos tengan infraestructura antes de avanzar”, sostuvo Ibarguren. En el norte del partido, recordó, ya existe una planta depuradora más pequeña asociada a un desarrollo privado.
El cronograma oficial prevé que la planta esté terminada hacia fines de 2027, con una puesta en funcionamiento por etapas. Hasta entonces, el sistema vigente seguirá siendo el que absorba la demanda de una ciudad que, especialmente en temporada alta, multiplica su población y pone a prueba su infraestructura básica.
1Vacuna del herpes zóster: los impensados pero prometedores efectos contra la demencia y la visión de los especialistas
- 2
Parque Patricios: se derrumbó el techo del estacionamiento de un complejo de viviendas
- 3
Agenda paralela: al menos 10 provincias avanzan en un proyecto propio de ley de educación nacional con un foco prioritario
- 4
Paro nacional docente: ¿hay clases este martes 3 de marzo?





