Con meditadas soluciones de diseño, el estudio Mersi logró convertir 28m2 en un dos ambientes con todas las letras
4 minutos de lectura'
“Lo que buscamos, antes que nada, es crear algo atemporal. Concebir lugares con alma en los que uno se siente bien de inmediato, esos que mezclan lo elegante y lo cool. La elegancia se traduce en la elección de los materiales y en el detalle con que se trabajan; la modernidad, en los colores y las formas”. Eso nos dijeron, desde París, Simon Mimoun y la arquitecta Meryl Motyka, socios del estudio de arquitectura, diseño interior y de mobiliario Mersi a propósito de este monoambiente que renovaron llave en mano para un inversor.

“En nuestros proyectos siempre hay una mezcla de madera, por su calidez; metal, para el toque sofisticado; telas sobrias, pero de textura interesante y azulejos atractivos, pero no ostentosos. Diría que lo que define nuestro estilo es que parece simple y, sin embargo, está cargado de detalles", sintetizan.
¿Cuál fue su primera impresión al llegar?
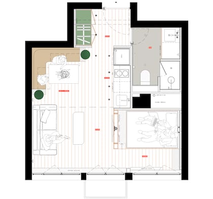
Originalmente, donde hoy está el dormitorio estaba la cocina; es decir, había solo un gran ambiente. Aunque la solución no era evidente, la nueva distribución se nos presentó enseguida. Teniendo en cuenta que el departamento da a una calle ancha, sin edificios enfrente, lo primero que quisimos fue darle un colorido y una distribución que lo hiciera luminoso y bien ventilado.


¿Qué de todo lo que se ve en este departamento habla del nuevo modo de vivir los pocos metros?
Después del Covid, todos repensamos el modo en que vivimos en casa. El confort se hizo esencial y, al mismo tiempo, el trabajo presentó nuevos condicionantes. En cada proyecto, reflexionamos sobre qué espacio puede funcionar como escritorio. Acá, el asiento amurado permite comer, recibir amigos y trabajar. Los espacios pequeños tienen que ser inteligentes, versátiles y modulables.

¿Cuál de las soluciones de diseño que aplicaron les resulta más satisfactoria?
Es un monoambiente de 28m2, y nos lanzamos al desafío de convertirlo en un verdadero dos ambientes, optimizado al máximo. Logramos un baño lindo y espacioso, un living-comedor, una cocina completa y, sobre todo, una cama separada del resto.

¿Cuáles dirían que son los errores más frecuentes al rediseñar un departamento chico?
Querer hacer entrar todo, a riesgo de recargar, impedir la circulación fluida y crear obstáculos visuales. Otro error es descuidar los espacios de guardado integrados, indispensables para mantener agradables los ambientes. (Nunca hay suficiente, lo sabemos todos). También, hay que intentar que haya coherencia entre materiales, colores y objetos; si no, rápidamente aparece el “efecto patchwork”, que puede reducir visualmente el espacio.
Plano detallado

Cocina integrada y lineal

Vivir en pocos metros no quiere decir vivir peor: hay que encontrar el equilibrio entre estética, funcionalidad y confort. Aun en 28m2, es necesario que el espacio sea agradable, confortable y, en lo posible, modulable.”
— Meryl Motyka y Simon Mimoun, socios de estudio Mersi

El cuarto, separado


“Creamos espacio de guardado en cada rincón que lo permitió, incluyendo cajones debajo de la cama elevada. Pero bueno, nuestro orgullo es la TV pivotante, que puede verse tanto desde el living como desde el dormitorio. Ese tipo de detalle hace una enorme diferencia”.

Carte blanche
¿Cuál dirían que es el mayor desafío de un proyecto “llave en mano”, como este?
Nos hicimos cargo del proyecto de la A a la Z, desde tirar paredes hasta las cucharitas de café. Pero el verdadero desafío es lograr que un lugar vacío se sienta tan cálido y “habitado” como uno que está realmente ocupado. En la mayoría de nuestros proyectos, nuestra participación en el interiorismo se limita a elegir materiales y diseñar algunos muebles, la decoración es la que trae el cliente. Acá, llevamos el concepto a fondo.

“El cliente nos dio carta blanca, algo que siempre da pie a una expresión total (dentro del presupuesto, obviamente: en este tipo de proyecto la rentabilidad es primordial). El objetivo era crear una experiencia, no solo hacer ‘algo lindo’. Teníamos que ponernos en la piel del futuro comprador, de modo que pudiera llegar, apoyar las valijas y tener todo listo para vivir, sin obras ni comprar suplementarias.

Más notas de Pocos Metros
45 m2 en Palermo. Te mostramos cómo se transformó un monoambiente en un espacio con estilo y confort de hotel boutique
En el Botánico. Un dos ambientes muy bien diseñado, con una terraza que hace la gran diferencia
Habitar sin límites. Cómo una reforma transformó un departamento de 70 m2 en un hogar flexible para vivir y trabajar en plena ciudad
1Sin obra, te mostramos cómo se renovó un departamento con terraza en un espacio con mucha elegancia, color y arte
2Nos metemos en el universo creativo de Ana Manghi y sus piezas únicas en vidrio que dan identidad a cada espacio
3Te mostramos cómo se transformó un monoambiente en un espacio con estilo y confort de hotel boutique
4Una casa con celosía árabe se convirtió en un oasis urbano que combina naturaleza y diseño









